
Isivini Wine Store, Ikoyi.
Isivini approached us about a Wine store in the heart of Ikoyi. From the first on-site meeting in the 13sqm shop, the topmost objective became the functional maximization, efficient circulation, and perception of space.
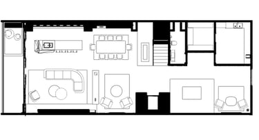
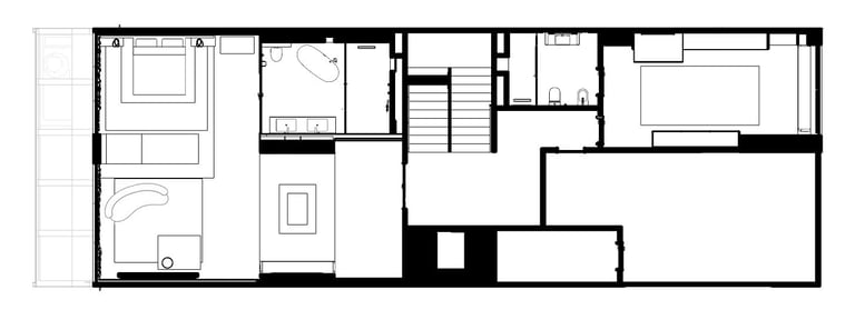
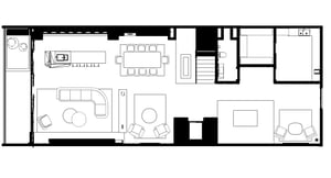
Penthouse 7, V.I.
Penthouse 7, nested unto the 12th floor of the Oriental hotel, began as a proposal for the renovation of the 5-bedroom apartment.
The design approach was to present an alternative approach to contemporary luxury design with African influences essentially seeking to pioneer a novel design movement called "African Futurism".






















The result manifests in a blend of clean modern lines and boxes juxtaposed with bold, sculptural, almost brutalist-like features.




These monolithic accents along with warm, organic, and textured supplements that are tastefully echoed throughout the spaces pay homage to the motifs and patterns reminiscent of African craftmanship layered with the sophistication of modern luxury living.




Ground floor plan
First floor plan
Photo: On-site progress.


Isivini's strong brand Identity was a remarkable place to build from as it offered a reference point to develop the colour scheme and visual language of the store.




Their burgundy, also reminiscent of wine served as a base to juxtapose the warm yellows and browns from the wooden floor, cork textures, and brass accents that contributed to a feeling of coziness and quiet luxury.
'The Squiggle' birthed from the Isivini logo enabled a visual language that echoed through the space to solidify the uniqueness and intentionality of this store design, as well as its representation of the brand.
Photo: Isivini Wine Store (Interior)



